PGL型交流低压配电屏
详细说明

一、用途
PGL 型交流低压配电屏适用发电厂、变电站、厂矿企业的交流50Hz,额定工作电压不超过交流380V的低压配电系统中作为动力、配电、照明之用。本产品技术性能符合GB7251和GB4720标准。
二、型号说明

三、正常使用条件
3.1周围空气温度不高于+40°C,不低于-5°C。24h内的平均温度不得高于+35°C
3.2空气清洁,相对湿度在最高温度为+40°C时不超过50%,在温度较低时,允许有较高相对湿度。例如:+20°C时为90%
3.3海拔高度不超过2000m。
3.4安装倾斜度不超过5°。
3.5无剧烈震动和冲击的地方及不足以腐蚀电器元件的场所。
四、产品设计特点
PGL 型交流低压配电屏,具有结构合理,电路配置安全,防护性能好,分断能力高,动热稳定性好,运行安全可靠等优点。是新一代低压开关设备,电网改造首选产品。
4.1 该产品每一个主电路方案对应一个或数个辅助电路方案。使用户在选取主电路方案后,可很方便的从对应的辅助电路方案中选取合适的电气原理图,从而减轻了用户的设计工作量,提高了工作效率。
4.2 取消了多回路小电动机控制方案,使主电路方案更加简洁合理。有关多回路小电动机的控制方案,建议选取动力箱系列产品。
4.3 本产品屏宽尺寸分400、600、800、1000mm四种,每一屏可作为一独立单元,也能以屏为单元组合成各种不同方案,以便用户选用。
五、产品的电气参数
5.1 额定绝缘电压为500V。
5.2 主电路额定工作电压为交流380V。
5.3 辅助电路额定工作电压为交流220V,380V,直流110V,220V。
5.4 PGL1型,额定分断能力为15KA(有效值);PGL2型,额定分断能力为30KA(有效值)。
六、结构简介
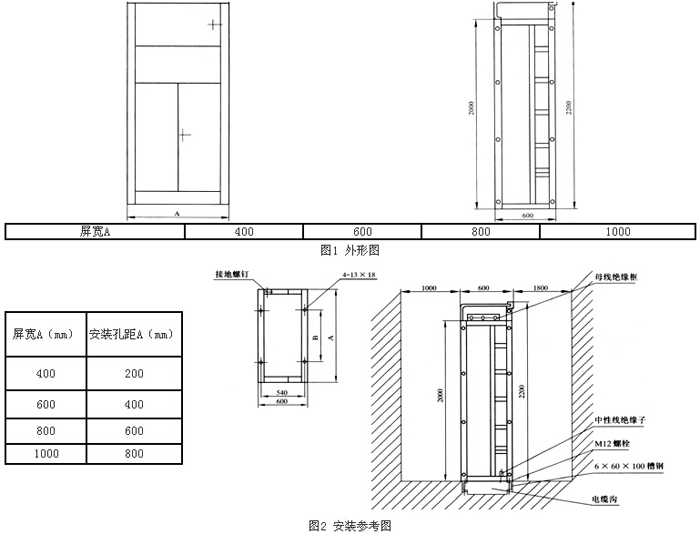
本产品系户内固定安装,为开启式双面维护的低压配电装置。产品的外形尺寸及结构见图1。


其壳体采用薄钢板及角钢焊接组合而成,屏前有门,屏上方的仪表板开启式小门,可装设指示仪表,组装的屏与屏之间加有钢板弯制而成的隔板,这样就减少了由于一个单元(一面屏)内部故障而使事故扩大的可能。屏后骨架上方,装有防护罩的主母线安装于绝缘框上,有效防止上方堕落金属物件造成主母线短路的恶性事故。
中性母线设置二屏的下方绝缘子上,壳体内外均有防护漆层,始端屏终端屏可加防护板。
本产品具有良好的保护接地系统,主接地点焊接在骨架的下方,仪表门也有接地点与壳体相连。这样就构成了一个完整的接地保护电路。由于这个接地保护电路的可靠性,防止操作者触电的防护能力大为加强。
七、 产品的安装与使用
7.1 产品通过运输抵达收货地点后,应首先检查包装是否完整无损。如发现问题,应及时通知有关部门查找原因。对于不马上安装的产品,应按正常使用条件的规定,存放于适当的场所。
7.2 产品的安装应按图2进行,基础用的槽钢及螺钉,由用户自备。
7.3 产品安装时应按照制造厂供给的图纸,将分装的主母线接好,首先应将母线搭接面清理干净,并涂上中性凡士油,然后用螺钉紧固。
7.4 当主母线两绝缘柜间距为1000mm时需在两绝缘柜的主母线中间处加支撑绝缘子以提高主母线的动稳定强度。
7.5 产品在安装完毕或维护后,在运行前应进行如下项目的检查与试验:
a. 检查漆漠有无剥落,屏内是否清洁;
b. 操作机构是否灵活,不应有卡住或操作力过大现象;
c. 主要电器的通断是否安装可靠准确,电器的辅助接点的通断是否可靠准确;
d. 仪表与互感器的变化及接线极性是否正确;
e. 母线连接是否良好,其支持绝缘子,夹持件及附件是否牢固可靠;
f. 保护电器的整定值是否符合要求,熔断器的熔芯规格是否正确;
g. 辅助电路的接点是否符合电气技术要求,表针及继电器动作是否正确无误;
h. 接地保护系统是否符合技术要求;
i. 用500V摇表测量绝缘电阻不得低于0.5Ω。
7.6 产品运行中注意事项
a. 本产品为不靠墙安装的交流低压配电装置,屏后有供维护的操作通道,正面有可开启操作维修的门。
b. 只有经过考核合格的专业人员或维修人员,方可进入通道或开启门锁进行操作或维修。
八、 产品的成套性
产品附有装箱单,产品合格证,使用说明书及有关图纸,如果产品装有门锁,应附钥匙一把,以及根据协议书应提供的备品备件。
本系列产品还提供PGL-J计量柜,为用户提供方便。
九、订货须知
用户订货时,应注意提供如下资料。
9.1 产品的全型号(包括主电路方案号及辅助电路方案号)。
9.2 按所选方案的电气原理图,列出电器元件明细表,提供电器元件型号及具体的技术数据。
9.3 主母线规格有1500A、1000A两种。
9.4 配电屏排列图。
9.5 始端屏、终端屏是否需要防护板。
上一条: GZS2型数控直流电源柜



关闭返回